September 13, 2024 in Telebelts

Schwing 33T4-20 Loop Belt

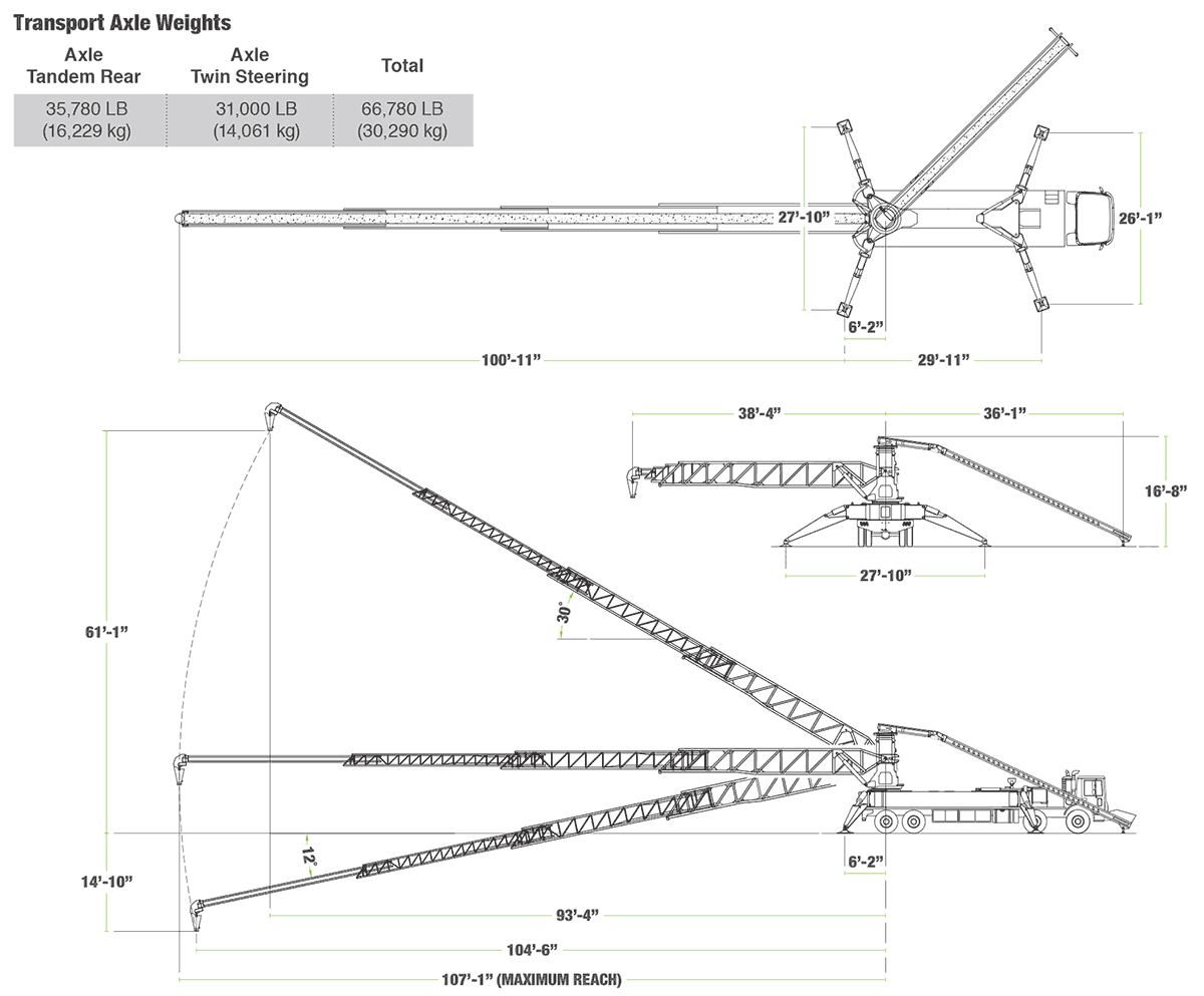
Offering a 107′ 1″ (38.56m) horizontal reach, the 33T4-20 features a patented feed conveyor, hinge and transfer that provide superior material flow in high capacity and difficult mix applications.

Specifications

Conveyors

Conveyor horizontal reach
Maximum at 0°107′ 1″32.64 m
Maximum at 30°93′ 4″28.45 m
Conveyor belt width20″508 mm
Feed conveyor length40′12.19 m
Feed conveyor belt width20″508 mm
Discharge height from grade
     Maximum at 30°61′ 1″18.62 m
     Maximum at -12°14′ 10″4.52 m
Main & feed conveyors
     Observed capacity at 0°8.40 cu yds/min4.47 cu m/min
     Observed capacity at 25°5.33 cu yds/min3.42 cu m/min

Outriggers

Net reach beyond outriggers
Maximum at 0°100′ 11″30.76 m
Maximum at 30°87′ 2″26.57 m
Outrigger spread L-R front hydraulic out26′ 1″7.95 m
Outrigger spread L-R rear hydraulic out27′ 10″8.48 m
Outrigger spread front to rear29′ 11″9.12 m

General Specifications

Water tank capacity150 gal567.8 L
Hydraulic tank capacity (with cooler)180 gal681.4 L

Truck Specifications

Weight21,000 LB9,525 kg
Engine horsepower425 HP317 kW
Wheelbase324″8,230 mm
Cab height104″2,642 mm
Fuel tank capacity80 gal303 L

Range Diagram

Schwing LB33T4 range diagram




By browsing this website, you agree to our privacy policy.
I Agree